• Appartamento in vendita Centro, Universidad, Madrid
    1 230 000 EUR

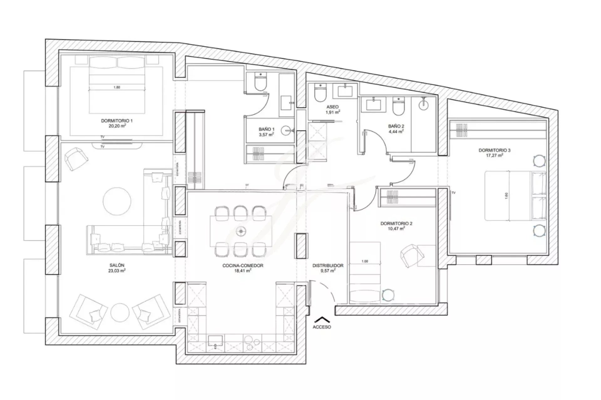
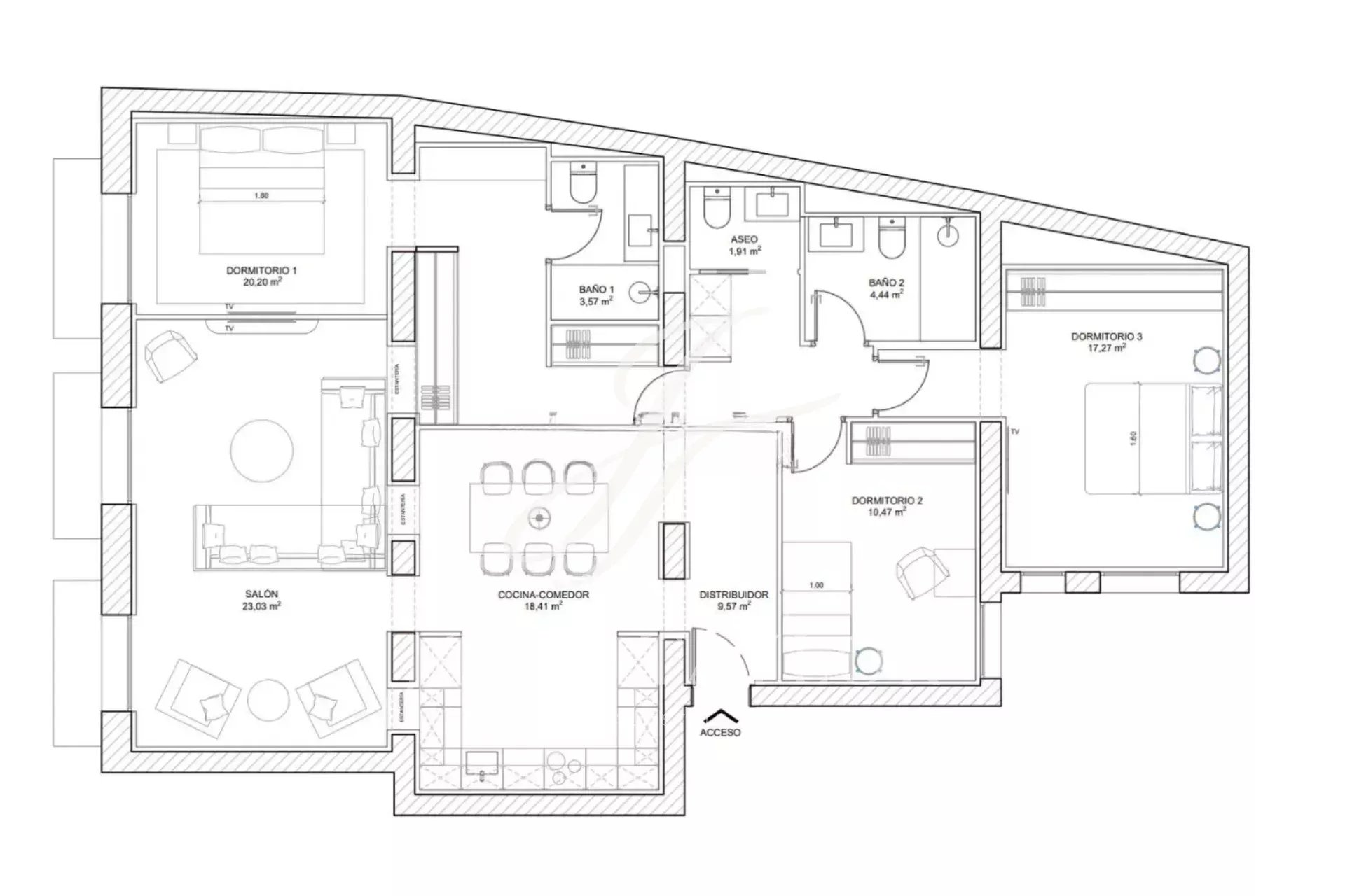
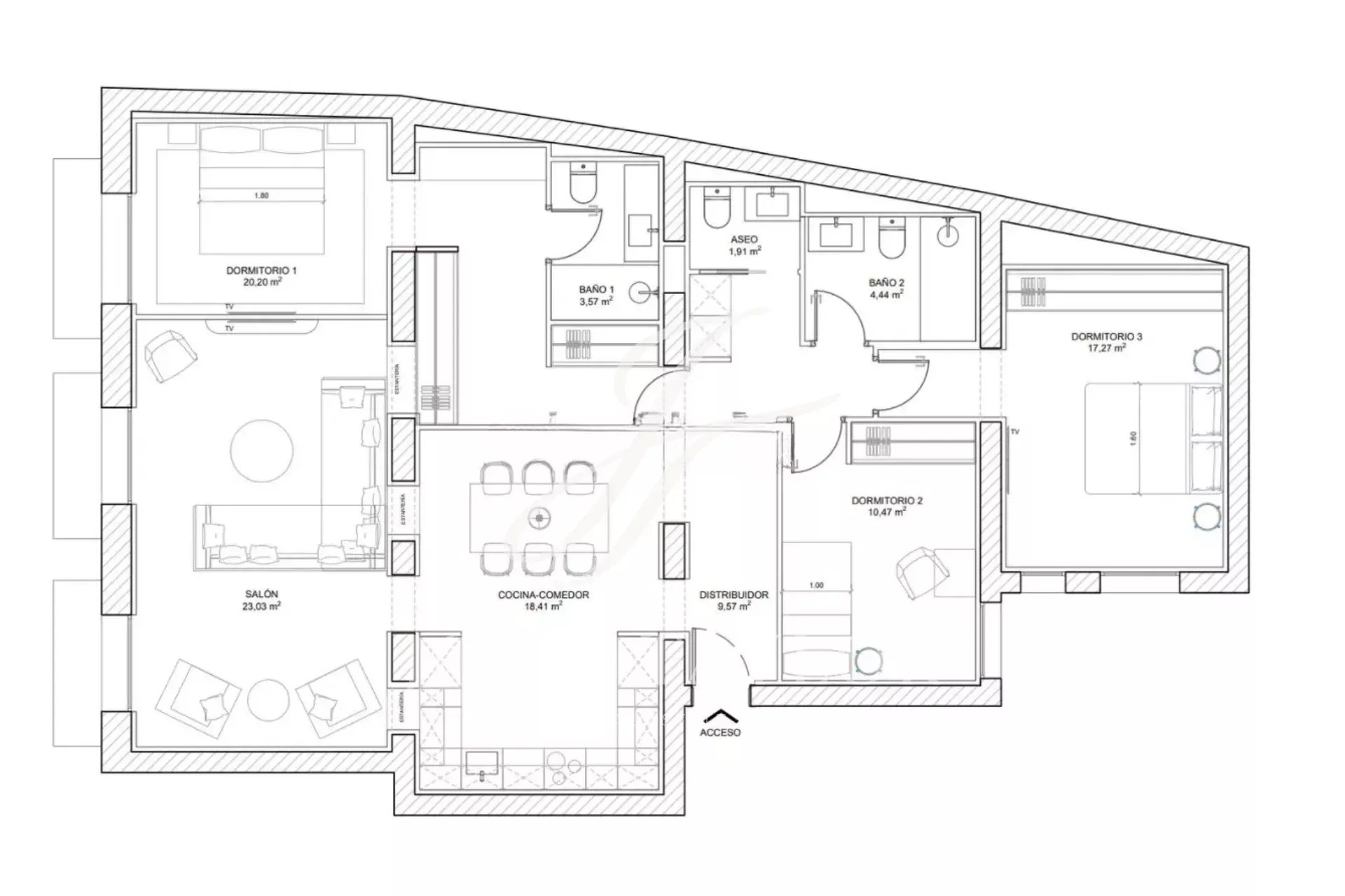
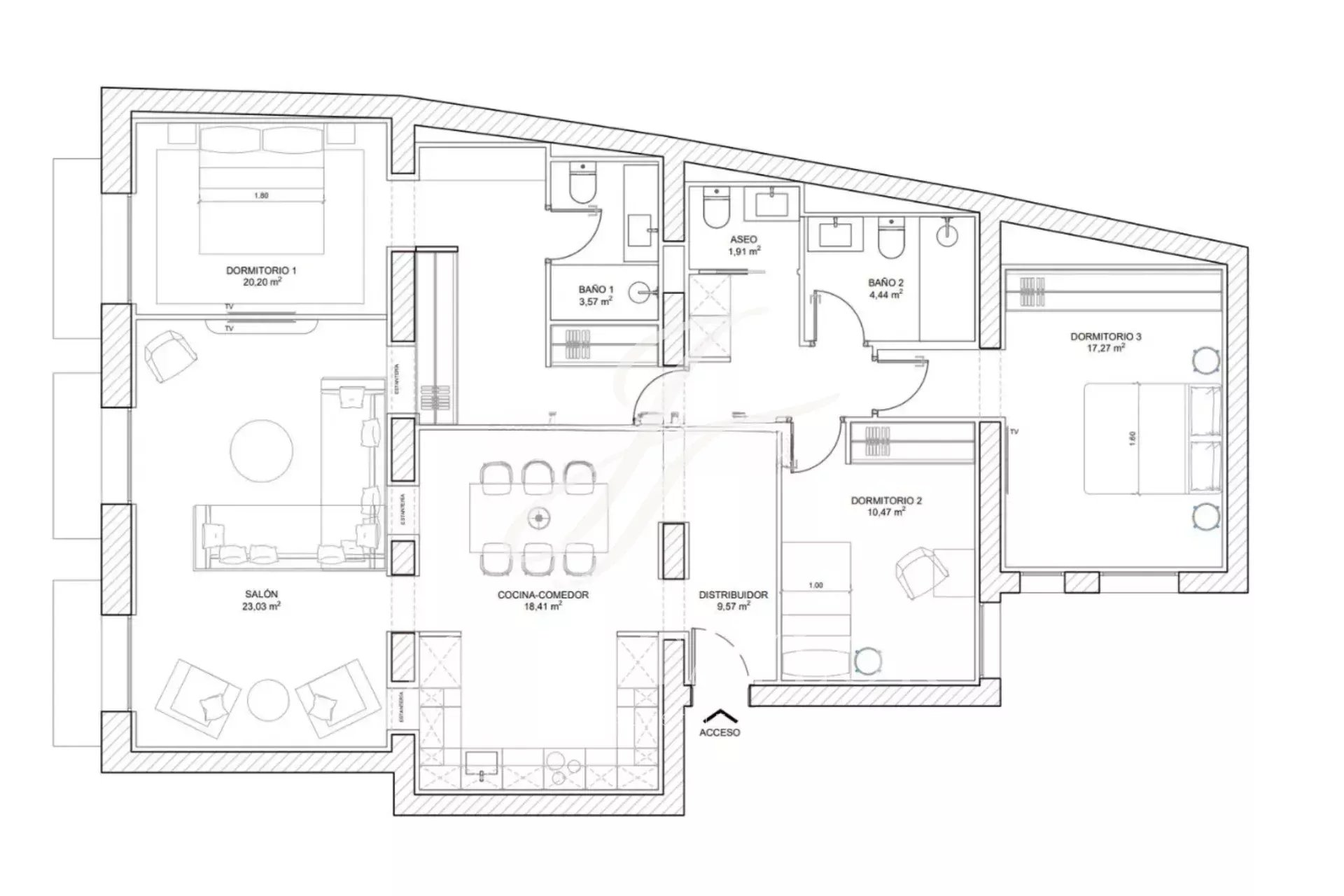
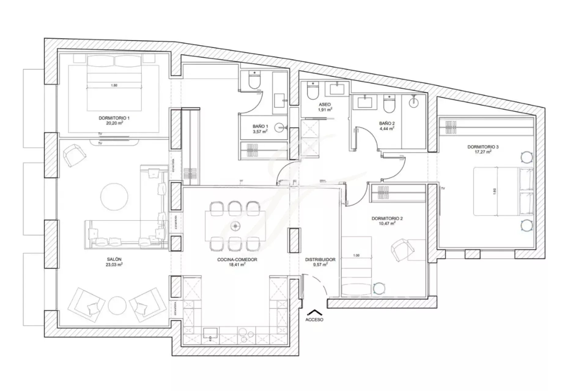
Superficie 159 m²159 m²3 Camere da letto3 Camere da letto3 Bagni con vasca3 Bagni con vascaPiano 1/7Piano 1/7Esposizione  South South Aria condizionataAria condizionata

Fascino e stile nel cuore di Malasaña

  • V2663MA
  • Vendita
  • Appartamento

Situata in una delle zone più storiche e caratteristiche di Madrid, questa proprietà combina il fascino tradizionale della piazza con un design interno sofisticato, funzionale e curato. La luce naturale inonda l'ampio soggiorno attraverso due balconi esterni con vista libera, creando un'atmosfera calda e vivace. Uno spazio ideale per godersi il ritmo di Madrid dalla serenità di casa.

Collegata al soggiorno, una sala da pranzo di dimensioni generose offre l'ambiente perfetto per feste intime o lunghi dopocena in un ambiente accogliente ed elegante.

La cucina, spaziosa e ben attrezzata, combina alla perfezione estetica e funzionalità. Dispone di un'ampia superficie di lavoro, di elettrodomestici integrati e di un ampio spazio di archiviazione, progettato per soddisfare le esigenze della vita quotidiana.

La proprietà dispone anche di una pratica zona lavanderia separata, perfettamente organizzata e dotata di ulteriore spazio di archiviazione.

La zona notte è composta da tre comode camere da letto. La camera da letto principale, esterna ed eccezionalmente luminosa, comprende un ampio armadio e un bagno privato. Le altre due camere, altrettanto accoglienti, condividono un secondo bagno completo. Come valore aggiunto, la proprietà dispone di un bagno per gli ospiti, ideale per gli ospiti.

Ogni angolo è stato progettato con cura, privilegiando l'equilibrio tra design, comfort e funzionalità.

Un'opportunità unica per vivere in una delle piazze più iconiche di Madrid, circondati da storia, luce e stile.

Dintorni

  • Autobus
  • Autostazione
  • Metro
  • Negozi
  • Scuola elementare
  • Ospedale/Clinica
  • Medico
  • Stazione
  • Taxi
  • Parcheggio pubblico
  • Parco
  • Supermercato
  • Nido
  • Cinema
  • Scuola media
  • Liceo

agenzia immobiliare prestigio MADRID - SALAMANCA
  • BACCO ASESORES SL
    65, Calle Lagasca
  • 28001 MADRID - SALAMANCA
  • SPAGNA

John Taylor
Richiesta online

* Campi obbligatori
Le informazioni raccolte sono necessarie per elaborare la tua richiesta. In qualsiasi momento, hai il diritto di accedere, modificare ed eliminare i tuoi dati.