• Appartamento in vendita Chamberí, Almagro, Madrid
    3 900 000 EUR

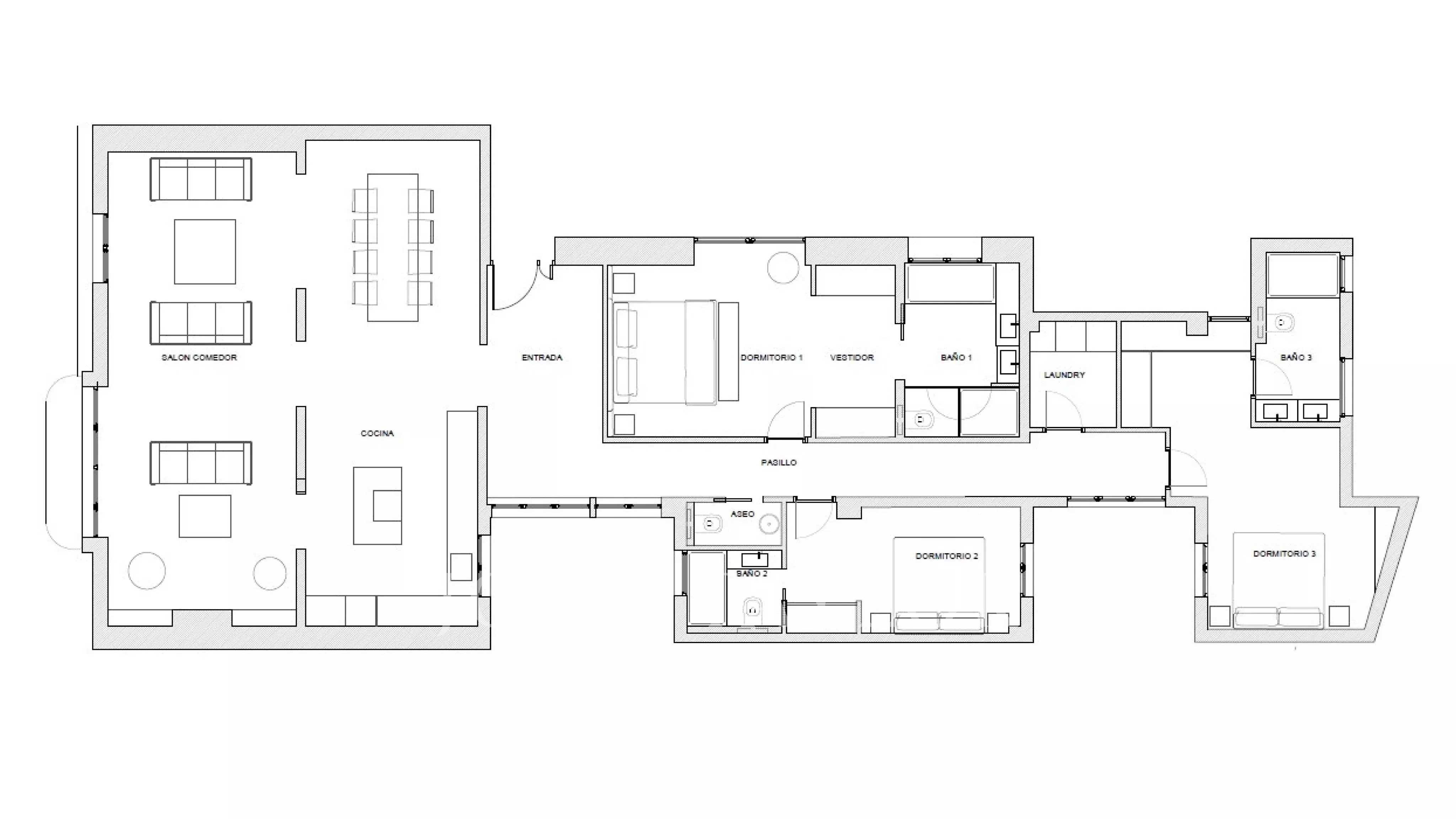
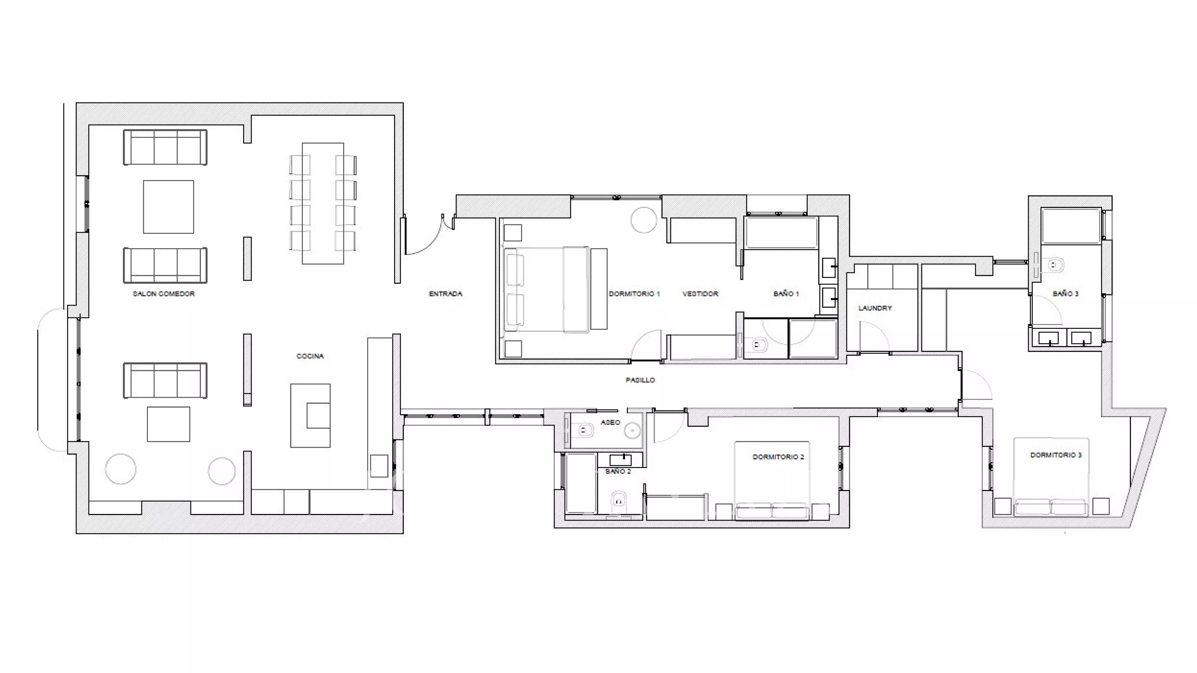
Superficie 245 m²245 m²3 Camere da letto3 Camere da letto3 Bagni con vasca3 Bagni con vascaPiano 4/6Piano 4/6AmmobiliatoAmmobiliatoVista Via Via Aria condizionataAria condizionata

Elegante casa in ristrutturazione ad Almagro

  • V0615MCH
  • Vendita
  • Appartamento

Nel prestigioso quartiere di Almagro, all'interno del distretto di Chamberí di Madrid, si trova questa elegante proprietà situata in una tenuta di rappresentanza.

Situata al quarto piano, la proprietà misura circa 245 m² e offre ampi spazi e una disposizione pensata per il comfort e la vita contemporanea.

La proprietà è attualmente in fase di ristrutturazione, il che vi permetterà di godere di una casa completamente rinnovata in una delle zone residenziali più esclusive della capitale.

La zona notte è composta da tre spaziose camere da letto en-suite, ognuna con il proprio bagno, che garantiscono privacy e comfort. La proprietà dispone anche di una toilette per gli ospiti, ideale per gli ospiti.

La proprietà comprende anche un ripostiglio e l'edificio dispone di un servizio di portineria, che offre comfort e valore aggiunto alla vita quotidiana.

Situata in una delle strade più eleganti e tranquille di Almagro, questa proprietà rappresenta un'ottima opportunità per chi cerca spaziosità, eleganza e una posizione privilegiata nel cuore di Madrid.

Dintorni

  • Autobus
  • Metro
  • Medico
  • Taxi
  • Supermercato
  • Centro congressi

agenzia immobiliare prestigio MADRID - CHAMBERÍ
  • JT REAL ESTATE CHAMBERI/CENTRO SL
    Plaza de las Salesas, 6
  • 28004 MADRID - CHAMBERÍ
  • SPAGNA

John Taylor
Richiesta online

* Campi obbligatori
Le informazioni raccolte sono necessarie per elaborare la tua richiesta. In qualsiasi momento, hai il diritto di accedere, modificare ed eliminare i tuoi dati.