• Appartamento in vendita Barrio Salamanca, Castellana, Madrid
    2 890 000 EUR

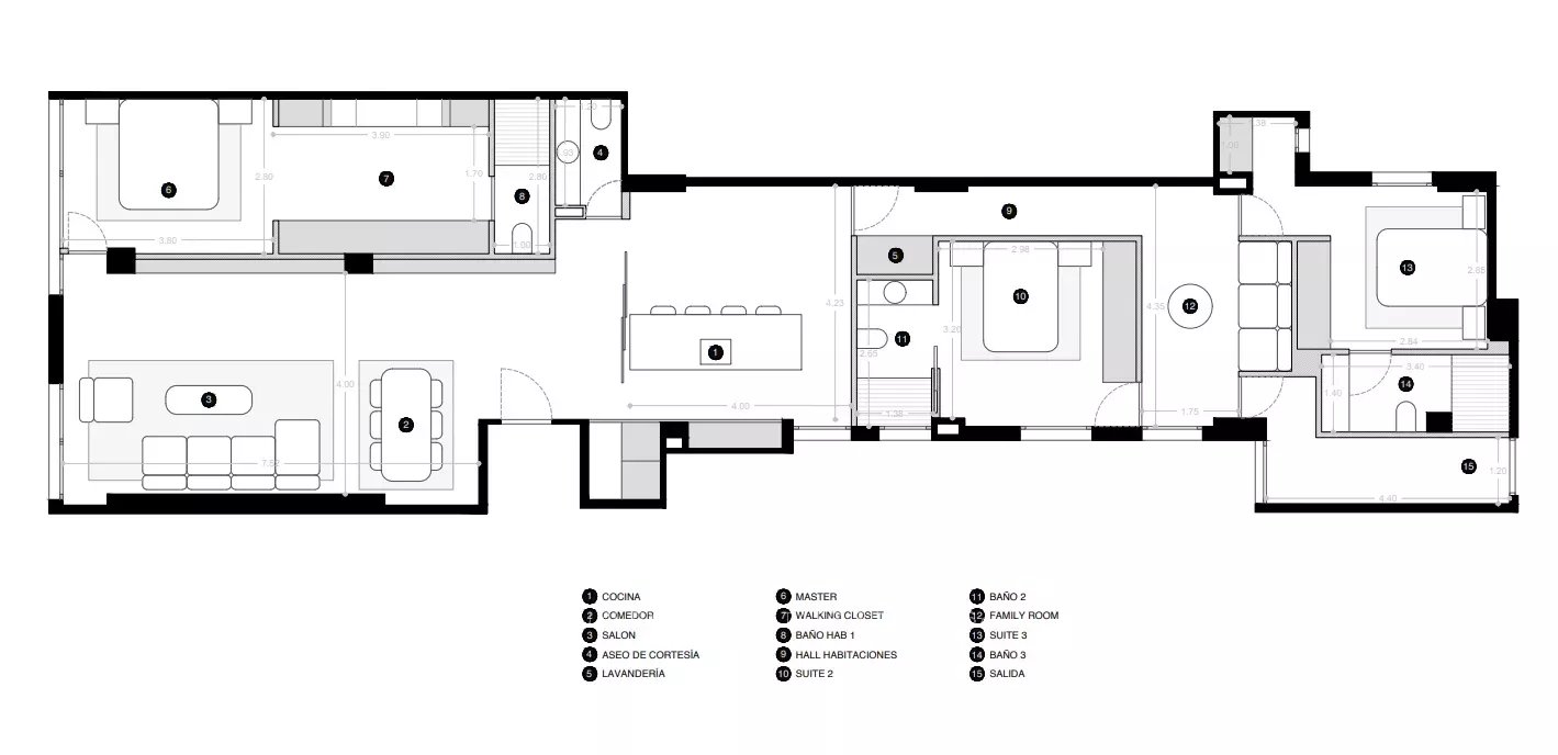
Superficie 276 m²276 m²3 Camere da letto3 Camere da letto3 Bagni con vasca3 Bagni con vascaPiano 6/7Piano 6/7Esposizione  West West Vista Scorcio Scorcio Garage / GaragesGarageAria condizionataAria condizionata

Appartamento da ristrutturare con garage

  • V2559MA
  • Vendita
  • Appartamento

Eccellente proprietà da ristrutturare situata al sesto piano di un edificio dalla facciata moderna in Carrer Castelló. La proprietà si distingue per la sua vista libera verso la chiesa di Diego de León e vanta servizi eccezionali, come un garage nello stesso edificio, un ripostiglio e diversi ascensori, tra cui un montacarichi.

Con pareti portanti, offre molteplici possibilità di realizzare la distribuzione secondo i gusti e le esigenze dell'acquirente.

Questa proprietà di prim'ordine nel prestigioso quartiere di Salamanca offre un'opportunità di investimento unica in una delle zone più esclusive di Madrid. Situato in Calle de Castelló, nel quartiere di Castellana, combina una posizione privilegiata con un'eccellente connettività, circondato da servizi di lusso e da una vivace offerta culturale e di svago. La costante rivalutazione degli immobili della zona garantisce un investimento redditizio a lungo termine.

Dintorni

  • Autobus
  • Metro
  • Negozi
  • Scuola elementare
  • Ospedale/Clinica
  • Supermercato
  • Scuola media
  • Liceo
  • Aeroporto

agenzia immobiliare prestigio MADRID - SALAMANCA
  • BACCO ASESORES SL
    65, Calle Lagasca
  • 28001 MADRID - SALAMANCA
  • SPAGNA

John Taylor
Richiesta online

* Campi obbligatori
Le informazioni raccolte sono necessarie per elaborare la tua richiesta. In qualsiasi momento, hai il diritto di accedere, modificare ed eliminare i tuoi dati.