COMPRARE
CARIBI
CIPRO
FAMAGOSTA
LIMASSOL
NICOSIA
PAPHOS
EMIRATI ARABI UNITI
FRANCIA
ALPI FRANCESI
COSTA AZZURRA
NORMANDIA
PARIGI
PROVENZA
RHÔNE-ALPES
SUD OVEST
ITALIA
COMO
MILANO
TOSCANA
MAROCCO
ESSAOUIRA
MARRAKECH
TANGER
PORTOGALLO
CASCAIS
COMPORTA
LISBONA
PRINCIPATO DI MONACO
CARRÉ D'OR
FONTVIEILLE
JARDIN EXOTIQUE
LA CONDAMINE
LARVOTTO
MONTE-CARLO
SPAGNA
ANDALUSIA
CASTILE Y LEÓN
CATALOGNA
COMUNIDAD VALENCIANA
DINTORNI DI MADRID
GALIZIA
IBIZA
MADRID
MAIORCA
MENORCA
STATI UNITI
NEW YORK
SOUTH FLORIDA
SVIZZERA
ALPI SVIZZERA
FRIBOURG
GINEVRA
VAUD
AFFITTO
VACANZE
CARIBI
FRANCIA
COSTA AZZURRA
PROVENZA
SUD OVEST
PORTOGALLO
SPAGNA
IBIZA
MAIORCA
MENORCA
SVIZZERA
LOCALE PER EVENTI
FRANCIA
LUNGO TERMINE
CARIBI
CIPRO
EMIRATI ARABI UNITI
FRANCIA
COSTA AZZURRA
PARIGI
PROVENZA
SUD OVEST
ITALIA
COMO
MILANO
TOSCANA
PORTOGALLO
PRINCIPATO DI MONACO
CARRÉ D'OR
JARDIN EXOTIQUE
MONEGHETTI
SPAGNA
DINTORNI DI MADRID
IBIZA
MADRID
MAIORCA
STATI UNITI
SVIZZERA
ALPI SVIZZERA
VAUD
STIMA
AGENZIE
ANDORRA
CARAIBI
CIPRO
EMIRATI ARABI UNITI
FRANCIA
AIX-EN-PROVENCE
ALPILLES
BORDEAUX
CANNES
CAP D'ANTIBES
CAP FERRET
DEAUVILLE
FAYENCE
LUBERON
LYON
MARSIGLIA
MEGEVE
MOUGINS
PARIGI E DINTORNI
INTORNO A PARIGI
PARIGI
PYLA - ARCACHON
SAINT JEAN CAP FERRAT
SAINT TROPEZ
SAINT-PAUL DE VENCE
SANARY-SUR-MER
VALBONNE
ITALIA
MILANO
TOSCANA
MAROCCO
PORTOGALLO
COMPORTA
LISBONA
PRINCIPATO DI MONACO
SPAGNA
IBIZA
MADRID - CHAMARTÍN
MADRID - CHAMBERÍ/CENTRO
MADRID - POZUELO
MADRID - SALAMANCA
MALLORCA - PALMA
MALLORCA - SANTA PONSA
MINORCA
SVIZZERA
CRANS-MONTANA
GINEVRA
GSTAAD
LOSANNA
MONTREUX - NYON
SION
VERBIER
SERVIZI
GESTIONE DELLA PROPRIETÀ
NUOVA COSTRUZIONE
CIPRO
LIMASSOL
NICOSIA
PAPHOS
FRANCIA
PORTOGALLO
COMPORTA
LISBONA
SPAGNA
ANDALUSIA
CATALOGNA
DINTORNI DI MADRID
IBIZA
MADRID
MAIORCA
MENORCA
SVIZZERA
NEGOZI
CARIBI
CIPRO
FRANCIA
COSTA AZZURRA
PROVENZA
SUD OVEST
ITALIA
PRINCIPATO DI MONACO
CARRÉ D'OR
FONTVIEILLE
LA CONDAMINE
MONEGHETTI
SPAGNA
MADRID
MENORCA
SVIZZERA
LIFE CAPITAL
CAPITAL MARKETS
LUXURY CONCIERGE
SU DI NOI
JOHN TAYLOR
STORIA
RIVISTA
DIVENTARE UN AFFILIATO
CARRIERA
BLOG
PRESS REVIEW
ARTCURIAL GROUP
ARTCURIAL
ARQANA
NEWS
PARTNER
COMPASS
CAMPER & NICHOLSONS
YACHTING
COMPRARE
AFFITTO
ENG
FRA
ITA
ESP
DEU
RUS
CZE
PRT
EUR
GBP
USD
CHF
CZK
QAR
COL
SAR
MUR
AED
METRIC
IMPERIAL
ritorno
>
Home
>
Ultime vendite
venduto
Siete interassati per questa proprietà
+34 971 598 800
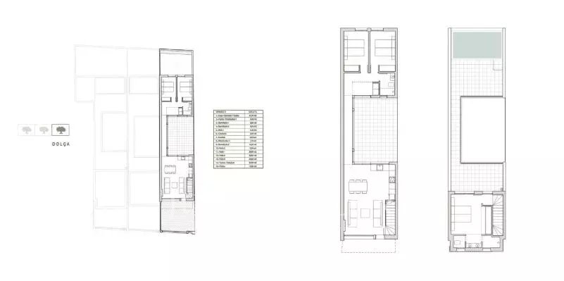
Townhouse Palma Di Maiorca, Son Rapinya, Maiorca
Mo di 3 M €
240 m²
3 Camere da letto
113 m²
2 Bagni con vasca
South
Via Cortile Giardino Città
Piscina
Aria condizionata
John Taylor Palma de Mallorca
Richiesta online
+34 971 598 800
Localizzare su una mappa
JT Real Estate Palma SL
Carrer Constitució 8
07001
PALMA DI MAIORCA
Islas Baleares
,
SPAGNA
ritorno
Link veloci