• Ufficio in vendita Principato Di Monaco, La Rousse / Saint-Roman
    9 555 000 EUR

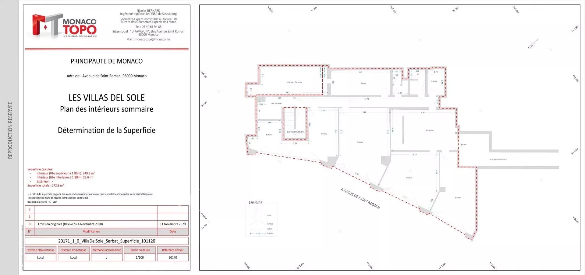
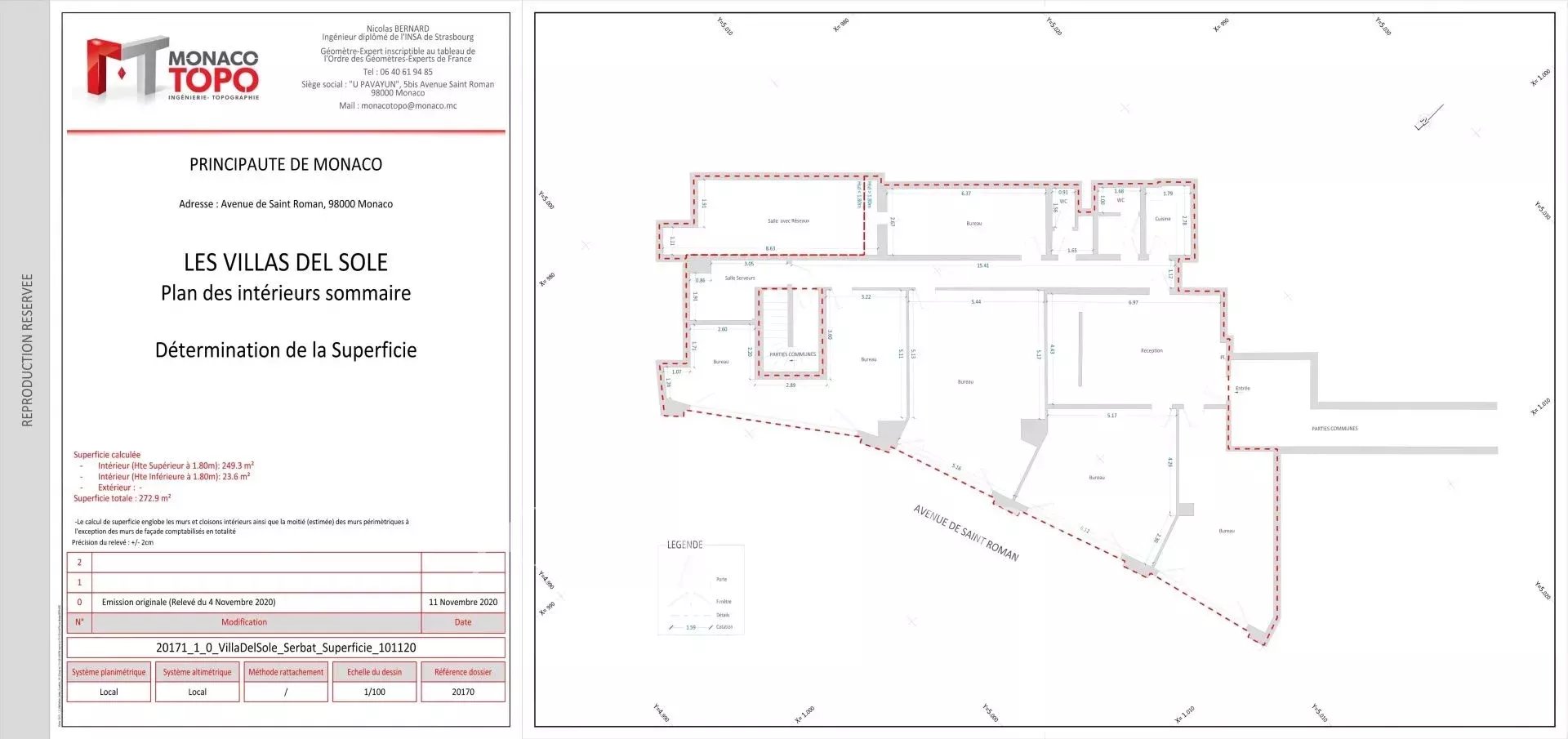
Superficie 273 m²273 m²5 Camere5 CamerePiano 1Piano 1Terreno 273 m²273 m²Parcheggio / ParcheggiParcheggio

La Rousse - Villa del Sole - Ufficio di 5 stanze

  • V1633MC
  • Vendita
  • Ufficio

Scoprite questi spaziosi e luminosi uffici di 273 m², disponibili immediatamente e completamente ristrutturati. Situati in un edificio di lusso con portineria, nel quartiere Saint Roman, vicino all'ingresso Larvotto di Monaco.

Superficie totale: 273 m²
Numero di uffici: 5

1 grande ingresso
5 Grandi uffici
1 Angolo cottura
1 ripostiglio
2 bagni separati (uomini e donne)
1 sala server di rete

Parcheggi: 4 posti auto inclusi
parcheggi n°2.03/2.04; n°2.05/2.06 e n°2.30/2.31 situati al 2° piano interrato dell'edificio Villa del Sole, attualmente affittati.

Questa proprietà è ideale per un'azienda che desidera stabilirsi in un ambiente lussuoso e pratico, nelle immediate vicinanze di Monaco.

agenzia immobiliare prestigio MONACO
  • JOHN TAYLOR & SON
    20 boulevard des Moulins
  • 98000 MONACO
  • Monaco, PRINCIPATO DI MONACO

John Taylor
Richiesta online

* Campi obbligatori
Le informazioni raccolte sono necessarie per elaborare la tua richiesta. In qualsiasi momento, hai il diritto di accedere, modificare ed eliminare i tuoi dati.