• Locale commerciale in vendita Principato Di Monaco, Fontvieille
    2 756 000 EUR

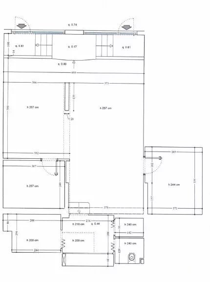
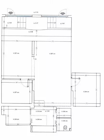
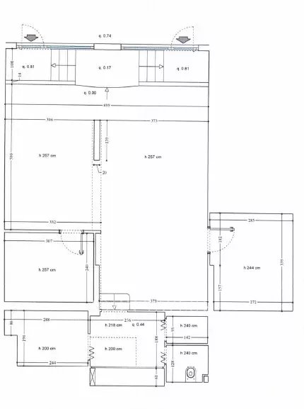
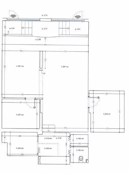
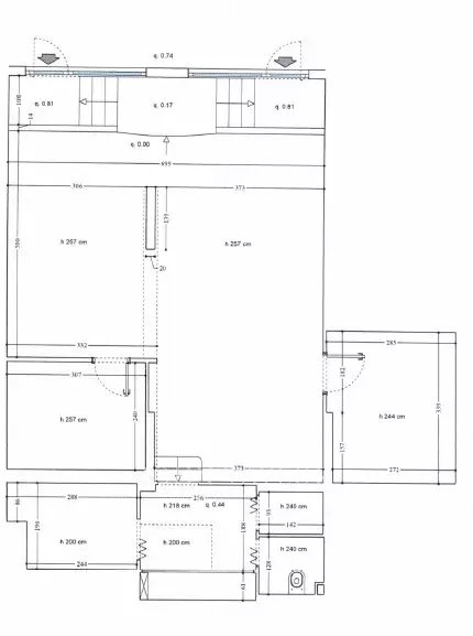
Superficie 87 m²87 m²Vista Porto Porto Terreno 87 m²87 m²Aria condizionataAria condizionata

Fontvieille - Le Michelangelo - Locale commerciale

  • V1755MC
  • Vendita
  • Locale commerciale

Locale attraente e luminoso con vetrina e doppio accesso. Vicino al porto di Fontvieille, a Place des Oliviers e ai negozi, in un ambiente pedonale.

Composto da:

- una grande sala principale,
- 2 camere laterali,
- una lavanderia
- un ripostiglio,
- una toilette
- un grande ripostiglio.

Attualmente affittato a un parrucchiere.

agenzia immobiliare prestigio MONACO
  • JOHN TAYLOR & SON
    20 boulevard des Moulins
  • 98000 MONACO
  • Monaco, PRINCIPATO DI MONACO

John Taylor
Richiesta online

* Campi obbligatori
Le informazioni raccolte sono necessarie per elaborare la tua richiesta. In qualsiasi momento, hai il diritto di accedere, modificare ed eliminare i tuoi dati.