• Esclusivo

  • Appartamento in vendita Principato Di Monaco, Fontvieille
    4 200 000 EUR

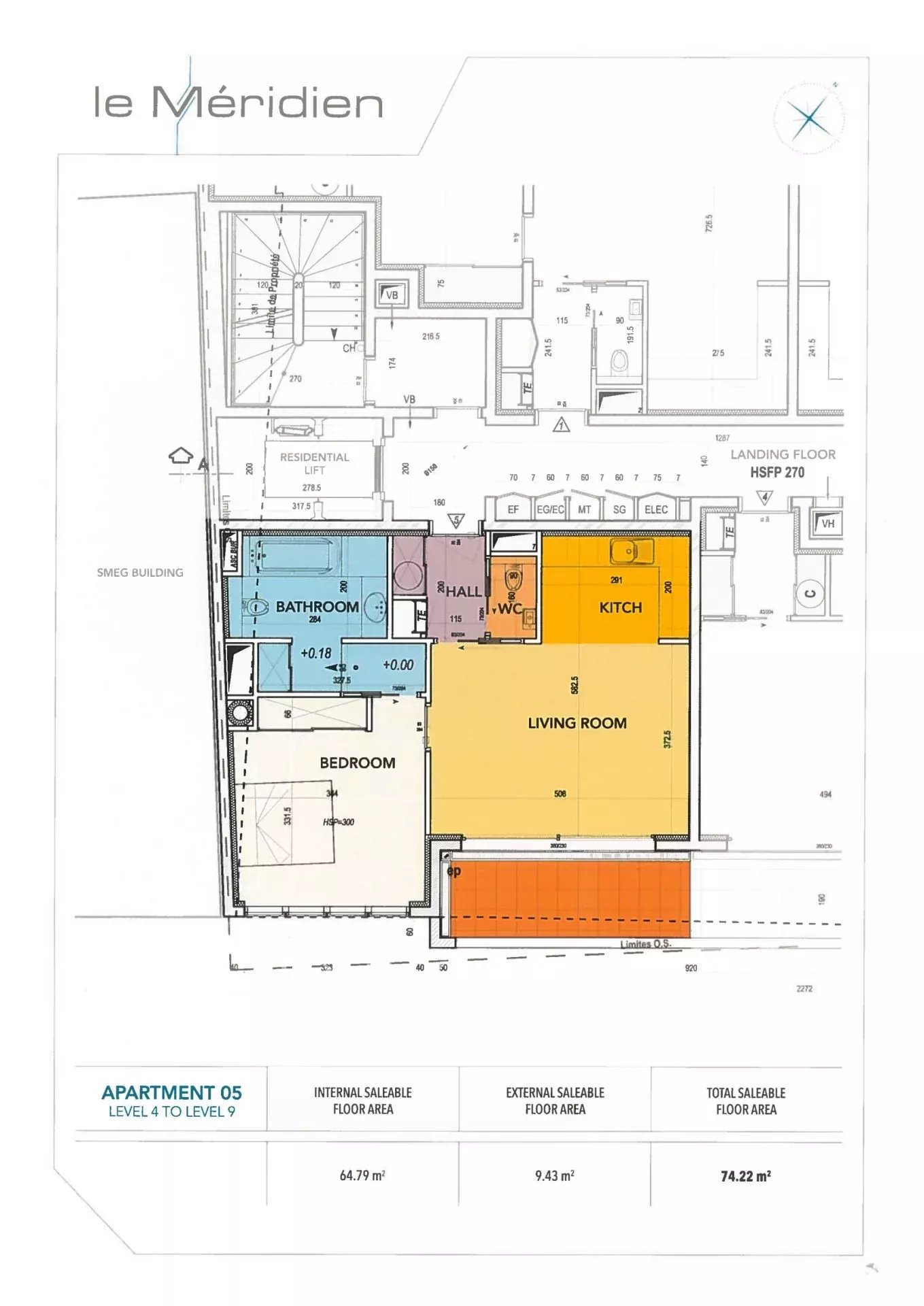
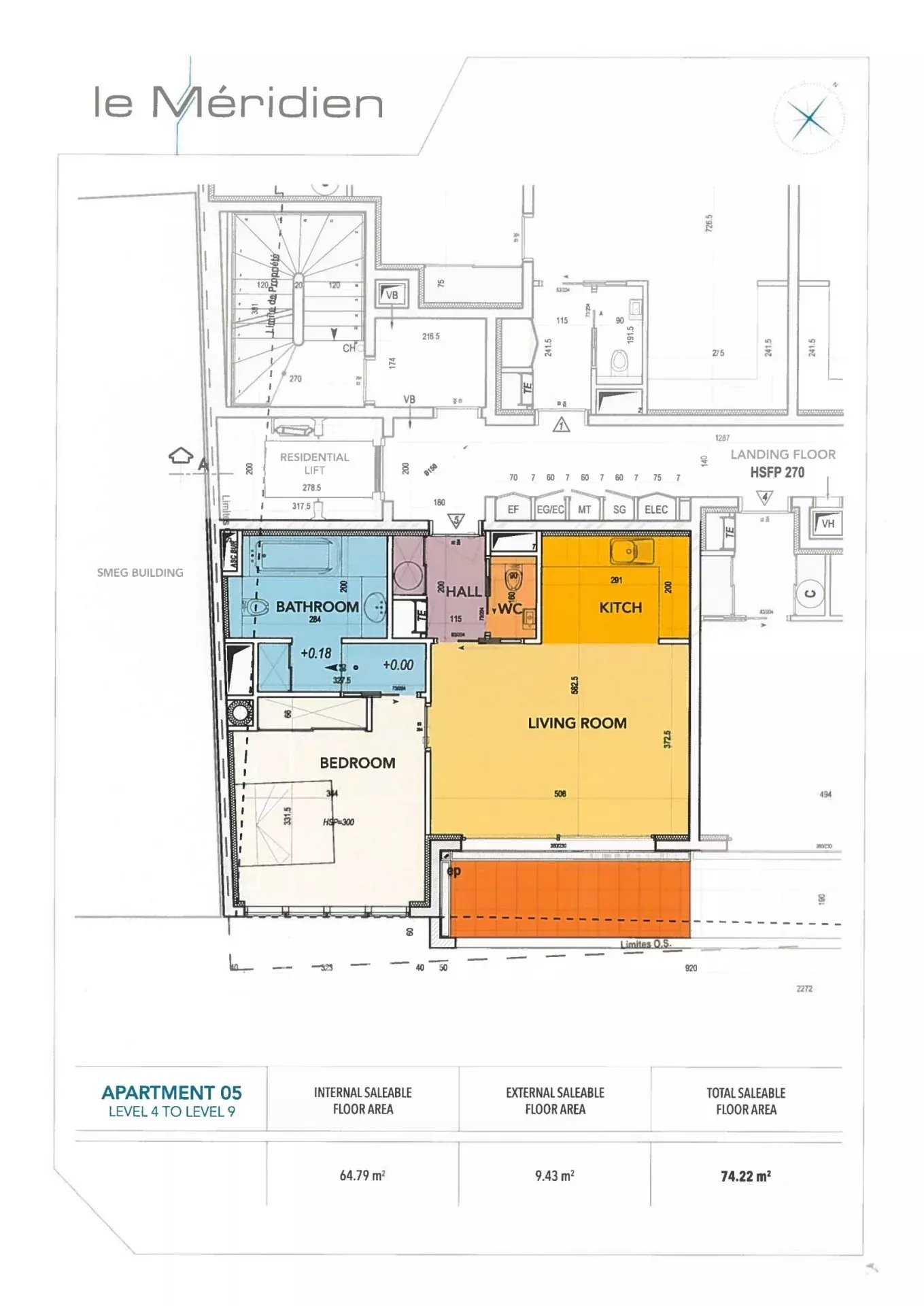
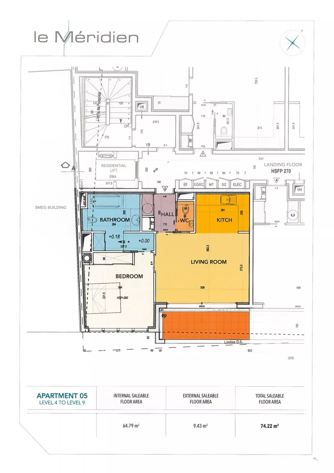
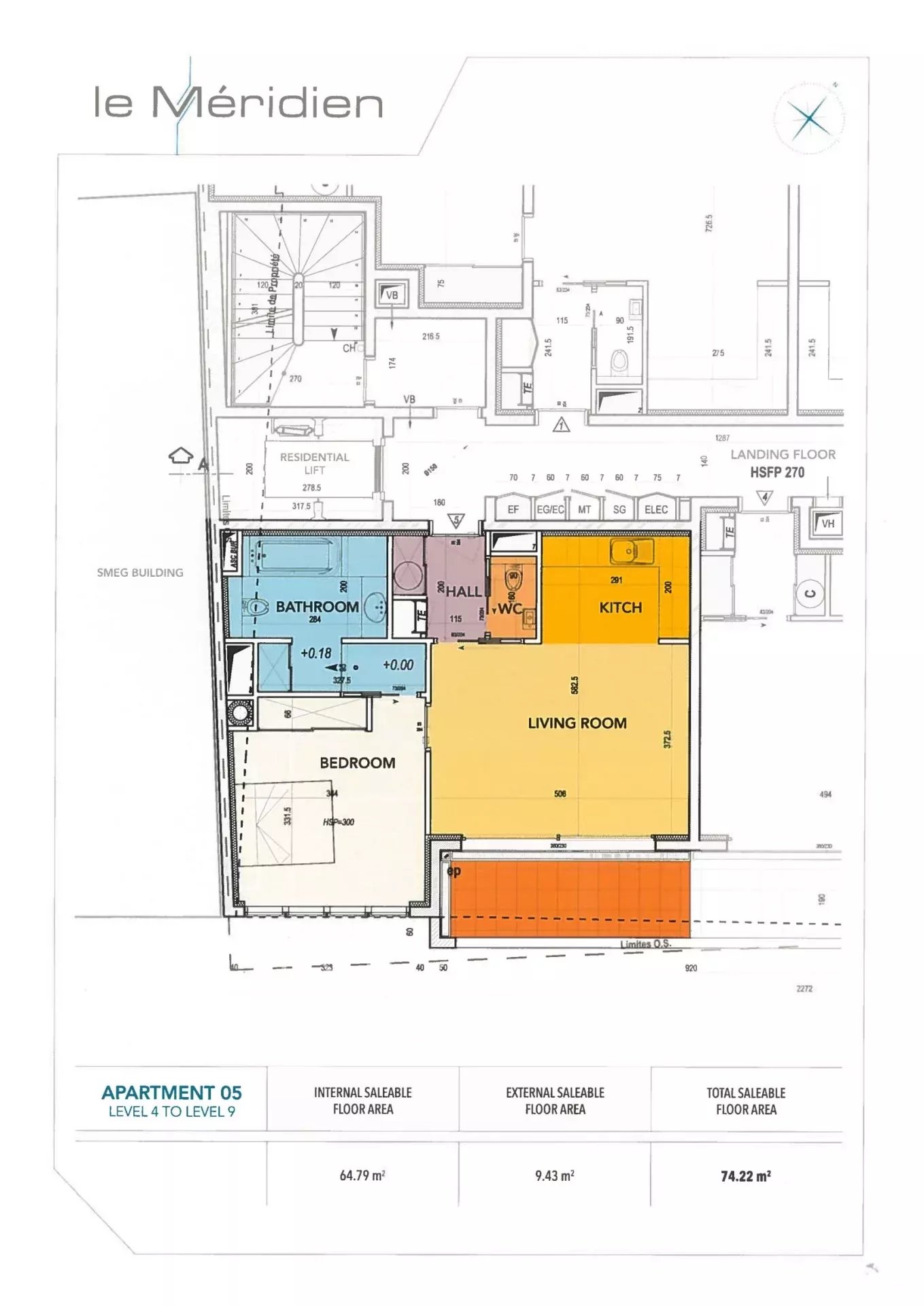
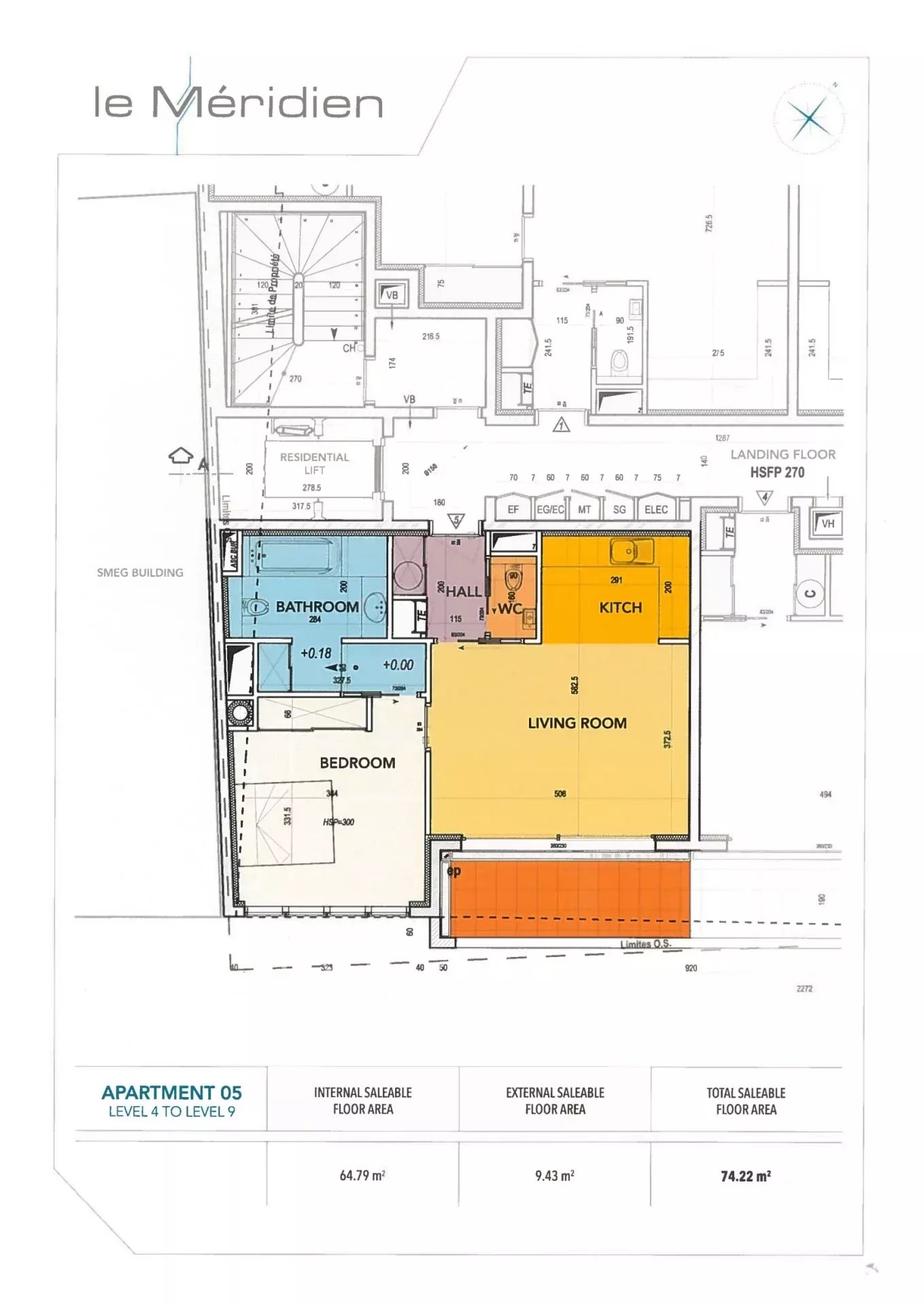
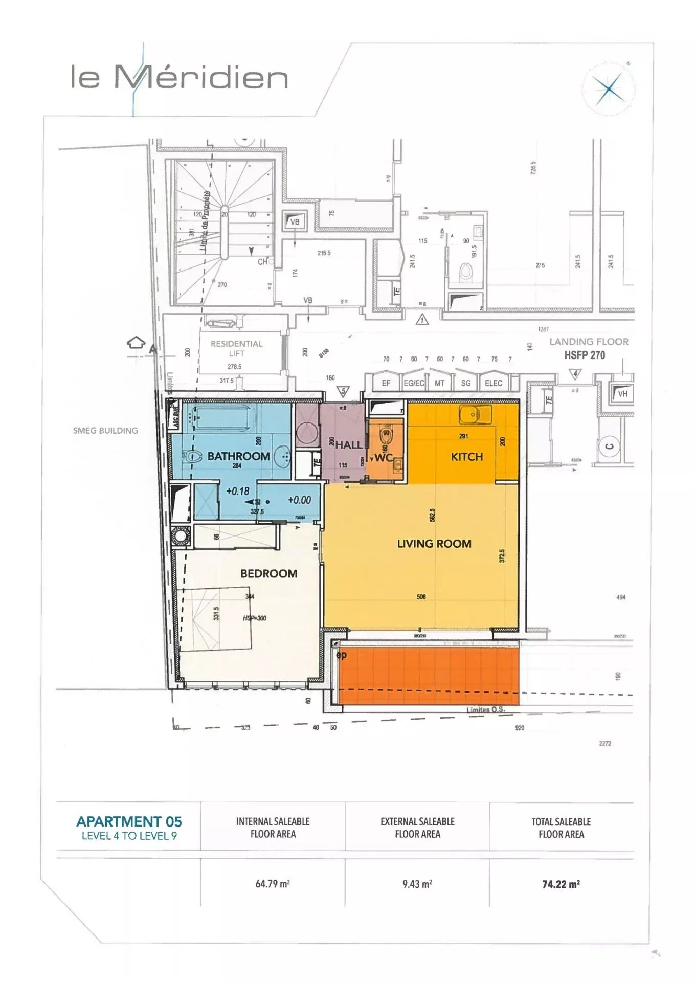
Superficie 65 m²65 m²1 Camere da letto1 Camere da letto2 Camere2 CamerePiano 9/9Piano 9/9Vista Aperta Porto Aperta Porto Balcone / Balconi 9 m²9 m²Terreno 74 m²74 m²Parcheggio / ParcheggiParcheggio

Fontvieille - Le Méridien - 2 camere - Nuova costruzione

  • V1597MC
  • Vendita
  • Appartamento

Piacevole bilocale all'ultimo piano di una recente e ricercata residenza, ideale come investimento o come pied-à-terre. Molto luminoso, gode di una vista libera sul porto di Fontvieille, che si può apprezzare dal balcone.

L'appartamento è composto da una cucina aperta sul soggiorno, un bagno per gli ospiti e una camera da letto con bagno privato.

Un bene raro: anche l'appartamento vicino, con una disposizione quasi identica, è disponibile per la vendita. Insieme, offrono un'opportunità eccezionale per creare uno spazioso appartamento di 3 o 4 locali, con volumi generosi e viste aperte, in un edificio recente a Fontvieille.

agenzia immobiliare prestigio MONACO
  • JOHN TAYLOR & SON
    20 boulevard des Moulins
  • 98000 MONACO
  • Monaco, PRINCIPATO DI MONACO

John Taylor
Richiesta online

* Campi obbligatori
Le informazioni raccolte sono necessarie per elaborare la tua richiesta. In qualsiasi momento, hai il diritto di accedere, modificare ed eliminare i tuoi dati.