• Appartamento in vendita Principato Di Monaco, Monte-Carlo
    3 690 000 EUR

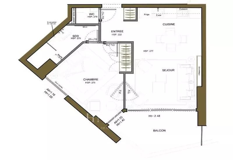
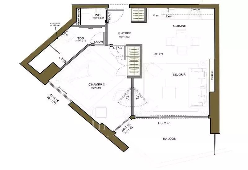
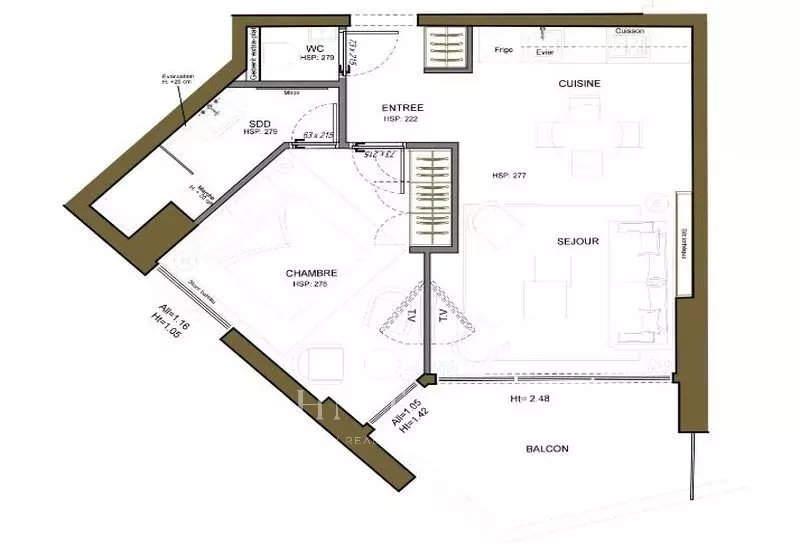
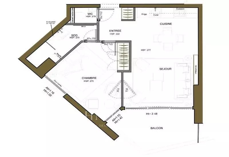
Superficie 50 m²50 m²2 Camere2 CamerePiano 27Piano 27Vista Panoramica Panoramica Terreno 60 m²60 m²

Monte-Carlo - Millefiori - Bilocale ristrutturato

  • V1036MC
  • Vendita
  • Appartamento

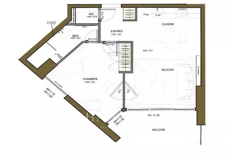
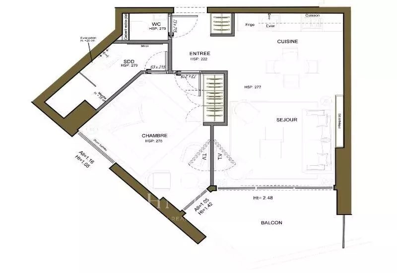
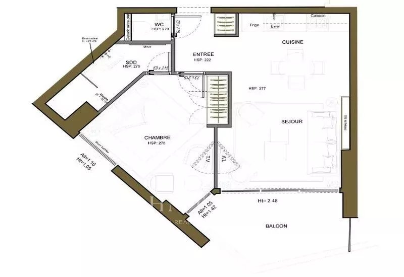
Vicino al Carré d'Or, in una residenza di lusso con portineria, bellissimo appartamento bilocale completamente ristrutturato. Situato al 27 ° piano, l'appartamento gode di una vista panoramica sul mare e sullo rocca di Monaco. Esposto ad ovest.

Superficie abitabile: 50 m²
Terrazza: 10 m²

L'appartamento è composto da:
- Un'entrata,
- Una cucina americana attrezzata che si apre sul soggiorno,
- Un soggiorno che si apre su una terrazza,
- Una camera da letto con bagno con doccia e armadiatura,
- Un bagno per gli ospiti.

Una cantina.

Un grande parcheggio nella residenza in supplemento a 300.000€

agenzia immobiliare prestigio MONACO
  • JOHN TAYLOR & SON
    20 boulevard des Moulins
  • 98000 MONACO
  • Monaco, PRINCIPATO DI MONACO

John Taylor
Richiesta online

* Campi obbligatori
Le informazioni raccolte sono necessarie per elaborare la tua richiesta. In qualsiasi momento, hai il diritto di accedere, modificare ed eliminare i tuoi dati.