• Appartamento in vendita Principato Di Monaco, Jardin Exotique
    10 900 000 EUR

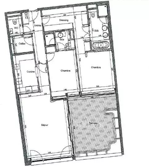
Superficie 125 m²125 m²2 Camere da letto2 Camere da letto3 Camere3 CamerePiano 2/7Piano 2/7Esposizione  South South Vista Mare Mare Terreno 156 m²156 m²Aria condizionataAria condizionata

Jardin Exotique - L'Exotique - 3 camere

  • V1890MC
  • Vendita
  • Appartamento

Scoprite questo splendido appartamento con due camere da letto a l'Exotique, una residenza di recente costruzione immersa in un ambiente naturale e che offre una vista panoramica eccezionale sul Palais e sul Mar Mediterraneo.

L'appartamento vanta un ampio soggiorno che si estende su una terrazza affacciata sul mare, una cucina moderna completamente attrezzata, una lavanderia, un bagno per gli ospiti e due camere da letto con bagno privato, ognuna con il proprio balcone e spogliatoio, anch'esse affacciate sul mare.

I residenti godono di un'area benessere privata con piscina e strutture dedicate. Tutte le case vantano caratteristiche di alta gamma e servizi all'avanguardia. L'esposizione a sud dell'edificio garantisce un'illuminazione ottimale per tutto il giorno.

Un posto auto completa la proprietà.

agenzia immobiliare prestigio MONACO
  • JOHN TAYLOR & SON
    20 boulevard des Moulins
  • 98000 MONACO
  • Monaco, PRINCIPATO DI MONACO

John Taylor
Richiesta online

* Campi obbligatori
Le informazioni raccolte sono necessarie per elaborare la tua richiesta. In qualsiasi momento, hai il diritto di accedere, modificare ed eliminare i tuoi dati.